Project 6 - Interieurontwerp B&B
Als afstudeerproject op mijn opleiding Interieuradviseur (Hout- en Meubileringscollege Rotterdam) heb ik een volledige interieuradvies en ontwerp, inclusief projectmanagement, uitgevoerd. Dit heb ik gedaan voor een B&B in hartje Gouda. Het concept waar ik vanuit heb gewerkt was 'Als van ouds, in het Gouds'.
Judith en Wilco Krijgsman
Interieuradviseur en projectmanager
2021
8,0
Opdracht
Als afstudeerproject heb ik van begin tot eind een volledig interieuradvies opgeleverd. Ik heb hiervoor een project aangenomen van klanten die een Bed & Breakfast wilde starten in hartje Gouda, naast hun eigen woonhuis. In dit project heb ik plattegronden ontworpen, de inrichting verzorgd, kostenspecificaties uitgewerkt, meerdere klantgesprekken gevoerd en mij bezig gehouden met commerciële technieken.
Resultaat
Ik heb met dit project mijn studie Interieuradviseur MBO4 mogen afronden.
Mijn proces
Locatiebezoek
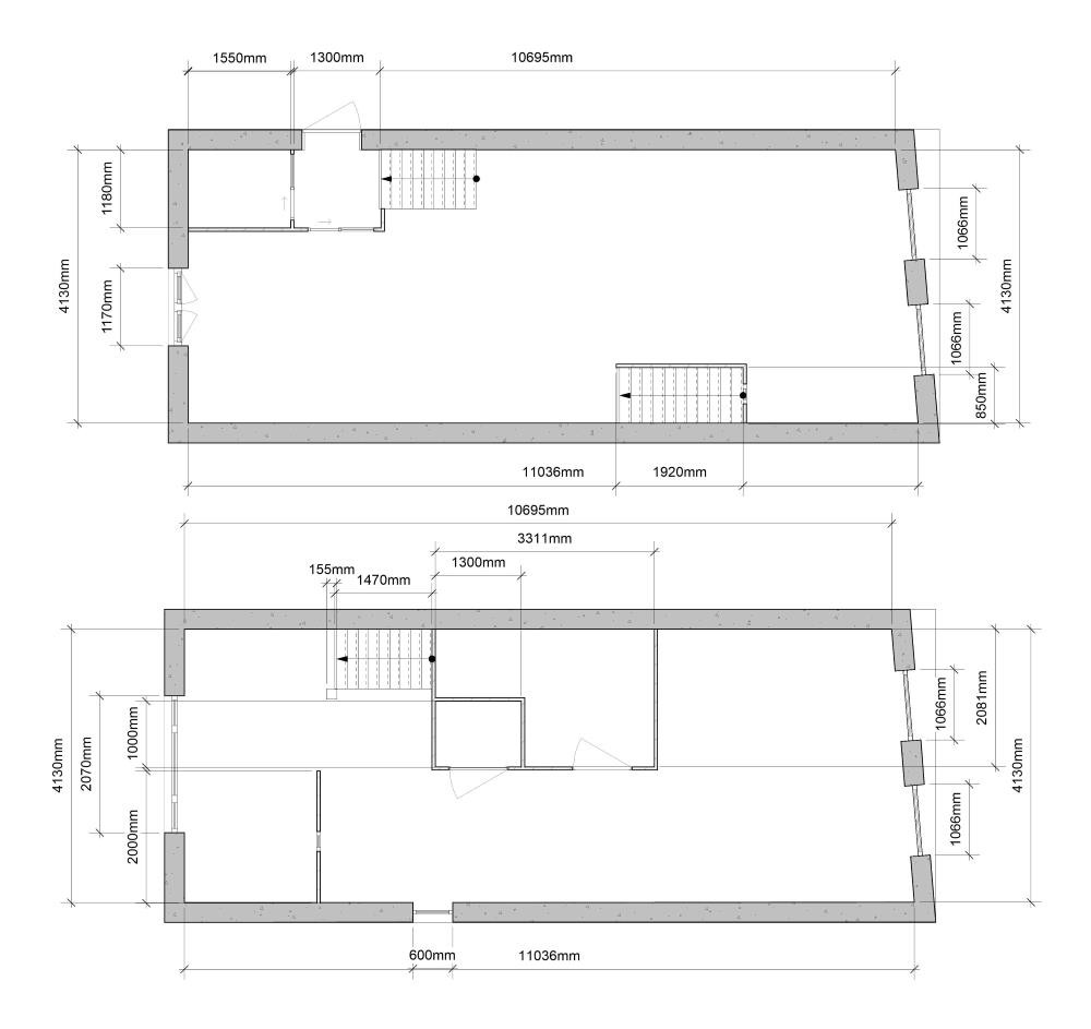
De Bed & Breakfast ligt aan een gezellig typisch Gouds straatje met gezellige terrasjes. Het is een monumentaal pand uit 1887. Op locatiebezoek heb ik de ruimtes geobserveerd, ik heb gekeken naar eventuele aandachtspunten in het gebouw en de ontbrekende maten opgemeten om hierna een bouwplattegrond te kunnen maken.
Plattegronden
Aan de hand van het locatiebezoek heb ik 'moederplattegronden' opgezet met alle maten van het pand erbij. Op basis hiervan kan ik verder met de indeling van de woning bepalen.
Onderzoek
Ik ben begonnen met van rechts boven v.l.n.r. de functievelden waar ik bekijk welke woonfuncties waar geplaatst kunnen worden in de B&B. Denk aan slapen, opbergen, koken, relaxen. Hierna heb ik zichtlijnen uitgetekend om rekening te houden met vanaf waar je wat ziet in de woning! Daarna volgde de looplijnen om hier rekening mee te kunnen houden tijdens de inrichting. Als laatst heb ik ontwerplijnen uitgetekend. Hiermee kan je het interieur strak afstemmen met de lijnen die het pand van zichzelf al heeft.
Schetsen en voorlopig ontwerp
Door veel te schetsen kan snel variaties maken in je ontwerp, om er zo achter te komen wat de meest geschikte indeling is. Hierna heb ik mijn definitieve schetsen uitgewerkt in een voorlopig ontwerp die ik hierna heb gepresenteerd in een klantgesprek om verdere aanpassingen te bespreken.
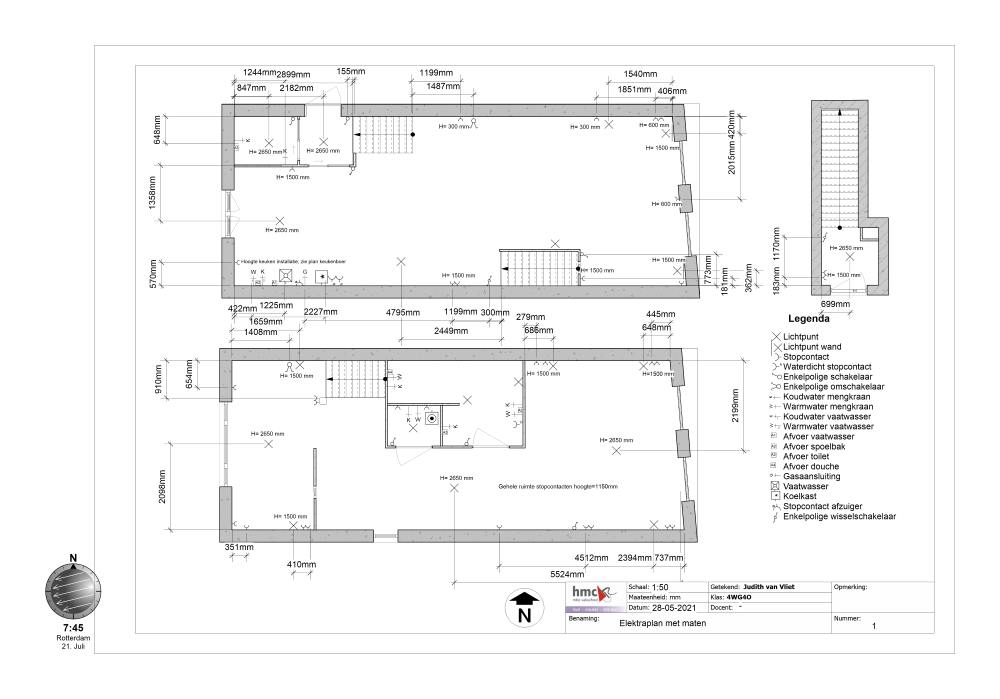
Licht- en elektraplan
Hiernaast is het elektraplan te zien, waar ik in de B&B heb aangegeven waar welke schakelaars geplaatst moeten worden, maar ook de lichtpunten, water af- en aanvoer en stopcontacten. Op deze manier weten de uitvoerenden precies wat waar geplaatst moet worden. Hetzelfde heb ik gedaan met lichtplan, waar de armaturen stuk voor stuk worden uitgelicht en omschreven.
Meubel, kleur en product voorstel
Met de meubel, kleur en product voorstellen heb ik duidelijk aan de klant kunnen presenteren waar welke meubels/producten per ruimte terug komen en welke kleuren toegepast gaan worden (denk aan verf, vloer, accessoires). Hierdoor wordt het ontwerp veel échter en kunnen de producten eenvoudig uitgekozen worden.
Definitief ontwerp
Na het presenteren van mijn ontwerpvoorstel en het doorvoeren van enkele kleine aanpassingen is het definitieve ontwerp gevormd. Hier is alles in detail uitgewerkt en zijn alle wensen van de klant doorgevoerd.
Commerciële technieken
Helaas zit er aan al dit leuks natuurlijk ook een kostenplaatje. Ook hier heb ik mij het gehele project mee bezig gehouden. Denk hierbij aan honorarium voorstel, kostenraming, offertes, facturen en specificatielijst van de offertes. Hiernaast heb ik ook nog een projectplanning gemaakt voor alle externe uitvoerende, zoals de schilder, stukadoor, elektricien etc.
"Wat een onwijs tof ontwerp heb jij voor ons gemaakt! Wij wisten niet waar we moesten beginnen in onze bouwval. Gelukkig heb jij ons er heel goed doorheen begeleid, met als kers op de taart een ontwerp die helemaal aan onze wensen voldoet."
Wilco Krijgsman
Klant en eigenaar van de B&B









